von Hase
SKH Arnsdorf Zentrum für Seelische Gesundheit B4N-B3
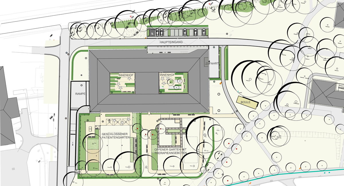
Eingliederung der psychiatrischen Stationen als Zentrum für Seelische Gesundheit in die denkmalgeschützte Parkanlage des Sächsischen Krankenhauses Arnsdorf unter Berücksichtigung zeitgemäßer Gesundheits- und Therapieansätze, wobei für ein Gebäude ein Ersatzneubau entsteht und ein weiteres Gebäude saniert wird. In den denkmalgeschützten Park sind die gewünschten Therapieangebote und die neue Erschließung einzupassen die nach der Variantenuntersuchung Erschließungskonzeption ausgewählt wurde.
Die technische Aufgabenstellung beinhaltete dabei die Sanierung und Erweiterung des Erschließungssystems mit Straßen und Wegen unterschiedlichen Ausbaugrades, die Sanierung und Erweiterung der Abwassermedien bis DN 400 und die zugehörigen Tiefbauarbeiten.
Auftraggeber
Sächsisches Bau- und Immobilienmanagement
NL Bautzen
Leistung
Freianlagen LP 2-8
Ingenieurbauwerke LP 2-8
Verkehrsanlagen LP 2-8
Zeitraum
2014-2020
Gesamtfläche
ca. 12.500 m²
Kosten für KG 500 in brutto
1.880.000 €
