von Stefan
Landesdirektion Sachsen | EAE Hamburger Straße Dresden, Medientrasse Innenhof
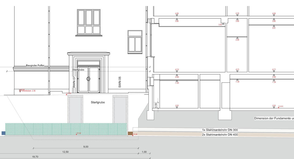
Voraussetzung für die Baufreimachung und Umnutzung der Gebäude für die zukünftige Erstaufnahmeeinrichtung Dresden ist eine Um- und Neuverlegung der Ver- und Entsorgungsmedien. Eine besondere Herausforderung bestand in der Durchörterung eines bestehenden Gebäudes für die Verlegung der Abwasser- und Trinkwassermedien sowie in Baugruben bis 4m Tiefe auf sehr beengtem Raum mit angepasster Baugrubensicherung.
Auftraggeber
SIB NL Dresden I
Königsbrücker Straße 80, 01099 Dresden
Zeitraum
seit 2019
Leistung
Ingenieurbauwerke LP 2-8
Verkehrsanlagen LP 2-8
Gesamtfläche
11.200 m²
Kosten für KG 500 in brutto
1.250.000 €
