von Hase
Bebauungsplan Nr. 4.1 „Mädelgraben“ Stadt Pirna
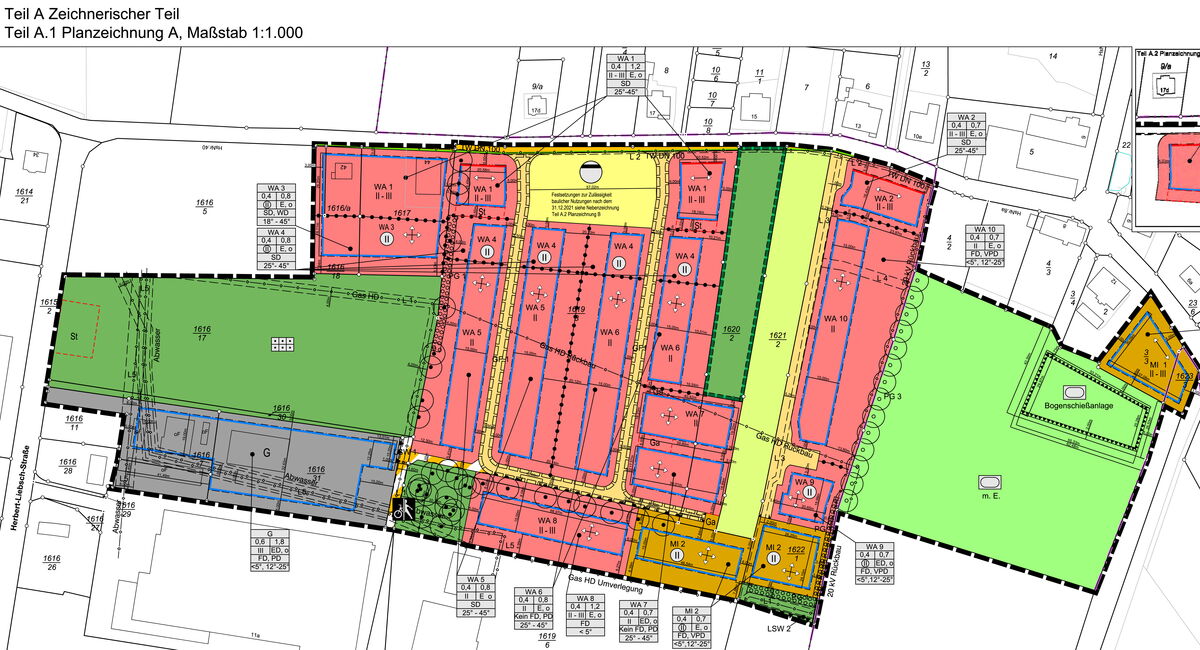
Aufbauend auf der Städtebaulichen Studie wurde deren Vorzugsvariante bauplanungsrechtlich weiterentwickelt und in ein Verfahren eingebracht. Gleichzeitig sollen Änderungen an Teilflächen des bestehenden Bebauungsplanes vorgenommen werden, um dem geänderten Entwicklungsbedarf Rechnung zu tragen. Neben klarstellenden Änderungen in den Festsetzungen werden Anpassungen in den bestehenden Wohngebieten des bisherigen Geltungsbereiches vorgenommen.
Auftraggeber
Stadtentwicklungsgesellschaft Pirna GmbH
Zeitraum
2015-2017
Leistung
Städtebaulicher Entwurf, Bebauungsplan
Geltungsbereich
ca. 7,25 ha
