Bauleitplanung / Städtebau
von Hase
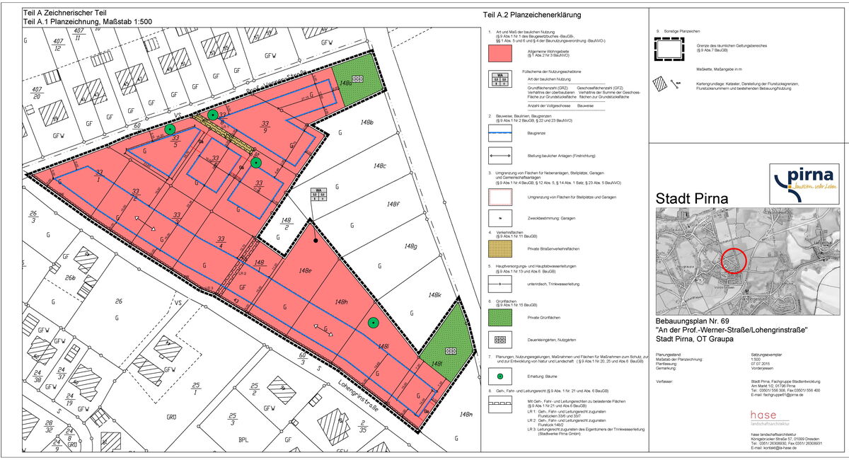
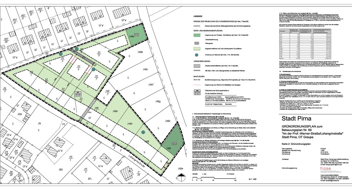
Bebauungsplan Nr. 69 "An der Prof.-Werner-Straße / Lohengrinstraße" Graupa
Die geregelte Nachverdichtung in Ortsrandlage von Graupa ist Ziel dieses Bebauungsplanes. Entstanden aus Wochenendgrundstücken, wurden einzelne Grundstücke bereits zu DDR-Zeiten mit Einfamilienhäusern bebaut, andere Datschen aus eigenem Antrieb vergrößert. Für eine geordnete städtebauliche Entwicklung innerhalb des Gebietes und eine klare Definition des Ortsrandes als Orientierung der Eigentümer sorgt nun dieser Bebauungsplan.
Auftraggeber
Eigentümergemeinschaft Lohengrinstraße
Zeitraum
2013 - 2015
Leistung
Bebauungsplan, Umweltbericht, Grünordnungsplan, Artenschutzfachbeitrag (in Zusammenarbeit mit SV Ringling-Hahn)
Geltungsbereich
ca. 1,21 ha
